Chalet en bois à toit plat, structure à ossature bois légère et performante, isolée par l’extérieur selon les normes RE2020, avec toit plat étanchéité (EPDM ou membrane technique, pente 1–5 %) assurant gestion efficace des eaux de pluie et intégrité structurelle.
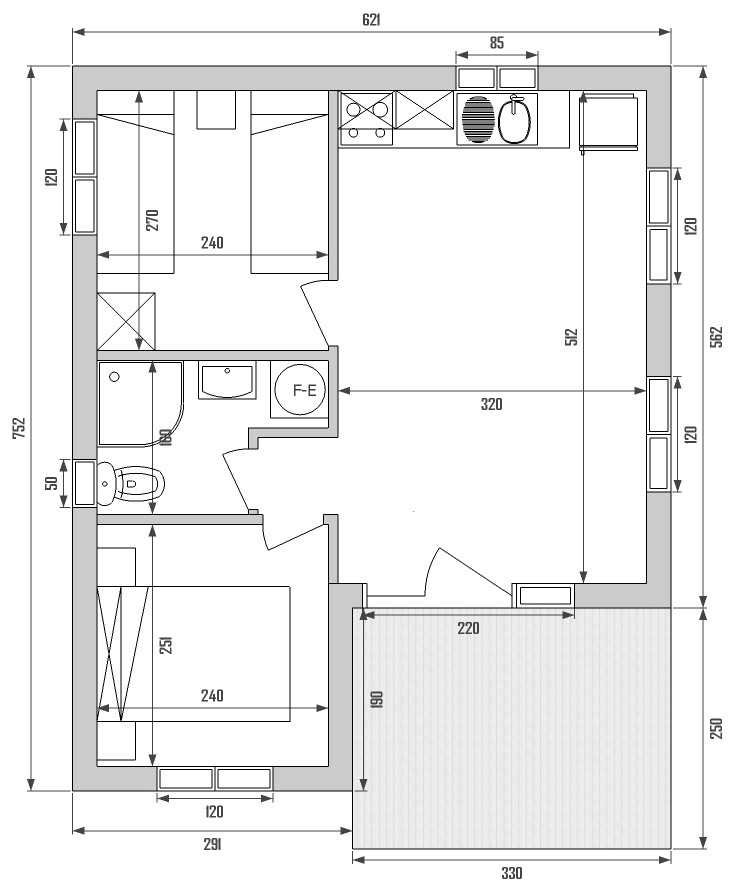
Surface totale 48,68 m² – Surface habitable 32,72 m² – Terrasse 8,25 m² – Pour 5 personnes 2 chambres, cuisine-salle à manger, salle de bains et WC.
Bungalows en bois économique, chalets en ossature bois. Constructions réalisées dans le cadre de la Réglementation Thermique RT 2012 et de la Réglementation Environnementale RE 2020
Toiture plate en ossature bois : charpente usinée de précision et isolation sarking extérieure (R ≥ 6 m²·K/W) avec membrane d’étanchéité selon DTU 43.1 (pente 1–5 %) garantissant longévité et performance thermique .






Chalet en bois à toit plat

