Chalet pour deux personnes conjuguant sobriété énergétique et confort bois. Les structures bois respectent l’Eurocode 5 pour le dimensionnement des charpentes, ainsi que l’Eurocode 8 en zones sismiques.
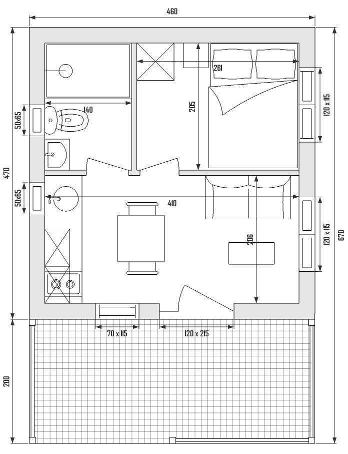
Surface totale 30,82 m² – Surface habitable 16,73 m² – Terrasse 9,20 m² – Pour 2 personnes 1 chambres, cuisine-salle à manger, salle de bains et WC.
Bungalows en bois économique, chalets en ossature bois. Constructions réalisées dans le cadre de la Réglementation Thermique RT 2012 et de la Réglementation Environnementale RE 2020
Chalet bi-personnel : conçu selon la RE2020 – en vigueur depuis le 1er janvier 2022 – ce modèle optimise la performance énergétique (via des indicateurs Bbio, CEP, Cep,nr) et minimise l’impact carbone (IC énergie, IC construction) grâce à l’usage de matériaux biosourcés comme le bois ou la fibre de bois, tout en garantissant un confort d’été assuré par le contrôle du degré-heure d’inconfort (DH)






conjuguant sobriété énergétique et confort bois

